Build Your Own House

Cost to Build a House in New Mexico

How Much Does it Cost to Build a House in New Mexico

Carl, I own a piece of property in some high desert mountains south of Socorro, NM.

I am thinking of building a retreat/vacation cabin.

I am hoping the cost will be between $100 and $115 per sq ft.

Am I just dreaming or is it possible? Tom B.

Hi Tom,

Good question…a question that may be on the minds of many people.

So, to help you get an idea of what it does cost to build a new house in the Socorro area, I picked what I think is an attractive house for the area to run a cost to build analysis.

Let’s check out the approximate (rough) cost to build this house.

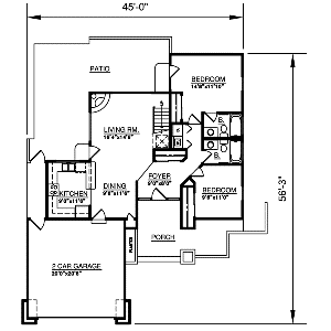
PLAN DESCRIPTION

This home features three bedrooms and three full baths. Plan includes optional Active Solar Details. A tiled foyer opens into a large living room with a unique Kiva fireplace. The master bedroom located on the upper level adjoins a private deck. An efficient “U” shaped kitchen with snack bar is located next to the dining area. Second master bedroom on first level with private bath opens onto a walled patio.

Houseplans.com Southwestern House Plan116-217

Characteristics of this home include the following:

The perimeter of the building has 6 corners.

The living area is 1,583 square feet.

The number of stories is 2.

Garage: 410 finished square feet.

Porch not under the main roof: 54 square feet of porch with finished ceiling, shed roof.

Concrete Patio: 410 square feet of surface.

Central ducted heating and cooling.

1 each insulated prefab metal fireplace, brick face.

Note: Labor, material and equipment costs have been modified to account for the higher costs associated with transportation to a construction site remote from the nearest commercial center.

To estimate the building cost, I’ll use the Craftsman Cost to Build Calculator discussed on my “Getting Started” page.

Note: I used “Quality Class” # 4 throughout the house (good standard home quality), except for the foundation, where I used “Quality Class” # 6 for a slab foundation. I also substituted a Zero-clearance insulated prefab metal fireplace with brick facing instead of a Kiva.

Using this foundation shape on the cost to build calculator for the Socorro, New Mexico area, I came up with a total cost to build of $186,791 including a General Contractor Markup of $21,325.

Using a General Contractor for a “turn key” job, the cost to build is approximately $118 per sq ft. I determined the owner/builder cost to build to be $165,466 by deducting the General Contractor’s markup of $21,325 from the $186,791.

That’s an approximate construction cost of $105 per sq ft.

Important Notice to Readers:

You should keep in mind that the cost to build for this example, or any house plan, can vary considerably depending quality of materials selected, and on actual bids for labor and material.

Note: Land and possible related fees (if any) are NOT included in the cost to build. Read more on fees on my Checklist for buying land on How to Buy Land and Build a House.

For those of you who are acting as your own General Contractor (owner/builder), until you actually start getting bids and entering them into your own cost estimating spreadsheet (see my spreadsheet page for FREE spreadsheets), it will remain approximate.

You can use construction estimating software to update this 2018 estimate to see if the cost has changed. You can also experiment with different building quality inputs that affect the cost to build. Enjoy! Carl Heldmann